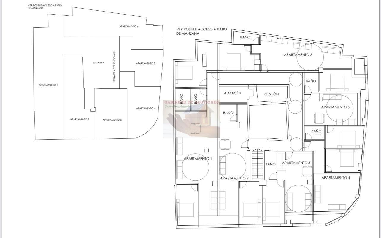
Local comercio en Centro, con 456 m² construidos, 9 estancias, 2 aseos, buen estado, exterior, planta Entreplanta, ascensor, orientación norte, acepta animales, en centro comercial, a pie de calle, entreplanta, hace esquina
LOCAL COMERCIAL, EXCELENTE PARA INVERSION, ZONA CENTRO, PARA OFICINAS, APARTAMENTOS, ETC. SITUADO EN EL CENTRO DE LA CUIDAD EN ZONA MUY TRASITADA, DONDE ENCONTRARAS TODO A LA MANO, LOCALES COMERCIALES, RESTAURANTES, BANCOS, PARQUES, TEATROS, CAFETERERIAS, ZONA DE OCIO, OFICINAS DE TODAS LAS ENTIDADES DE GOBIERNO.
VEN A VISITARLO
